Sea Breeze logo
Sea Breeze tikinti şirkətinə məxsus yaşayış kompleksi
  • Sahə (m²)
  • Qiymət
  • Təhvil tarixi
  • 50.27 - 124.64
  • 209400 AZN-dən
  • 2028
Daxili kredit
15% ilkin ödəniş, 45 ay müddət
Bakı şəhəri, Sabunçu r., Nardaran qəs., Sea Breeze Resort
Parametrlər
Təhvil tarixi2028
Mənzil sayı372
Binada mərtəbələr11
Bütün parametrlər
Ümumi məlumat
Davamını oxu
Arabian Ranches Xəzər dənizinin sahilində zərif şərq arxitekturasına malik yaşayış kompleksidir. Burada şərq ab-havası və müasir dizayn həlləri birləşərək sakinlər üçün unikal həyat tərzi yaradacaq.Layihə studiyalar və üçotaqlı mənzillərdən dörd yataq otağına malik üçmərtəbəli taunhauslara qədər müxtəlif daşınmaz əmlak variantları təklif edir.Arabian Ranches BƏƏ və Azərbaycan şirkətlərinin birgə layihəsidir və Azərbaycanın dənizsahili gözəlliyini və strateji mövqeyini qlobal miqyasda tanıtmaq məqsədi daşıyır.
Sea Breeze Arabian Ranches
Yaşayış kompleksi
Sea Breeze Arabian Ranches logo
(012) 311-02-●●Zəng etseabreeze.az
Planlar
1 otaq - 50.27 m²
209 375 AZN-dən
4 165 AZN/m²-dən
Təmir: TəmirliEyvan: 1Sanitar qovşaq: 1
Sea Breeze Arabian Ranches yaşayış kompleksi, mənzilin planı - 1-otaqlı, 50.27 m²
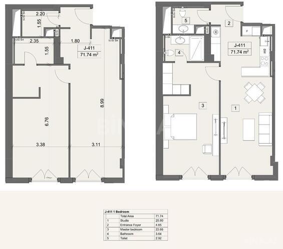
2 otaq - 71.74 m²
286 601 AZN-dən
3 995 AZN/m²-dən
Təmir: TəmirliEyvan: 2Sanitar qovşaq: 1
Sea Breeze Arabian Ranches yaşayış kompleksi, mənzilin planı - 2-otaqlı, 71.74 m²
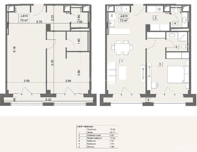
2 otaq - 73 m²
310 250 AZN-dən
4 250 AZN/m²-dən
Təmir: TəmirliEyvan: 2Sanitar qovşaq: 2
Sea Breeze Arabian Ranches yaşayış kompleksi, mənzilin planı - 2-otaqlı, 73 m²
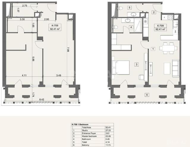
2 otaq - 92.41 m²
384 888 AZN-dən
4 165 AZN/m²-dən
Təmir: TəmirliEyvan: 2Sanitar qovşaq: 2
Sea Breeze Arabian Ranches yaşayış kompleksi, mənzilin planı - 2-otaqlı, 92.41 m²
Daha çoxuna bax
Sea Breeze Arabian Ranches YK üzrə elanlar
Elan sayı: 20