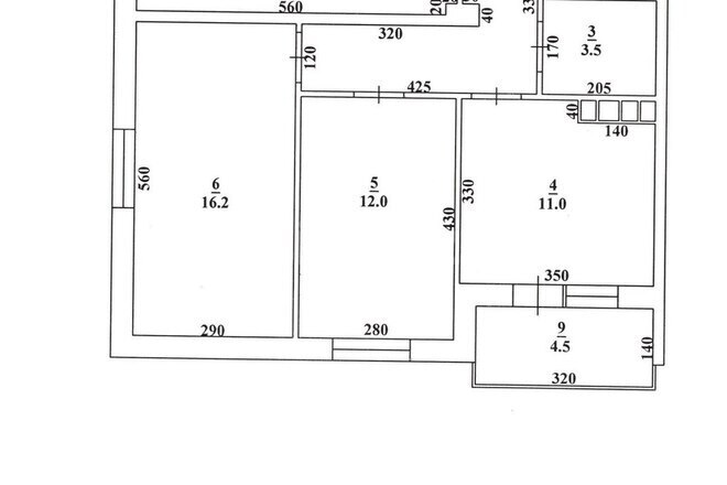
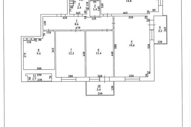
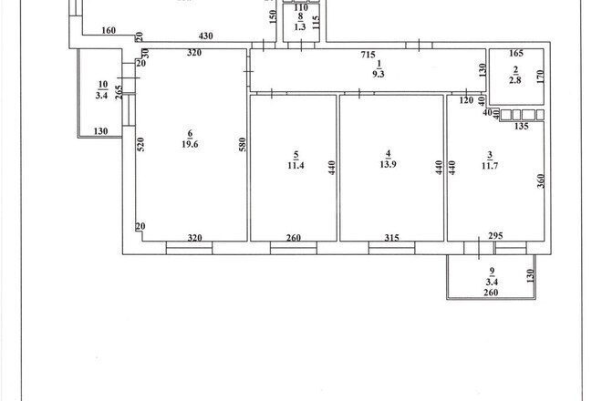
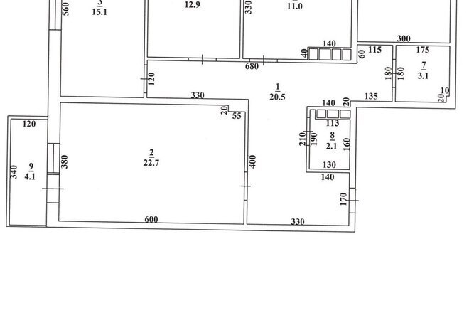
Qapalı tipli çoxfunksiyalı "Yeni yaşayış kompleksi" Abşeron rayonunda yerləşir. Burada sakinlərin rahatlığını təmin etmək üçün geniş infrastruktur nəzərdə tutulub.
Bütün mənzillər təmirlidir və kombi isitmə sistemi ilə təmin edilib. Həmçinin mənzillər ipotekaya yaralıdır.
Kompleksdə söhbətgahlar, yerüstü parklama, 280 uşağın istifadə edə biləcəyi uşaq bağçası və 1512 şagirdlik orta məktəb mövcuddur.
Mənzil almaq istəyən şəxslər əlaqə bölməsindəki https://ms.sosial.gov.az/ saytına daxil olaraq mənzillərlə tanış ola və almaq istədiyi mənzili seçərək, onu portaldakı “Bron et” düyməsini sıxmaqla bron edə bilərlər. Mənzili ilk bron etmiş şəxs həmin mənzili almaqdan imtina etdiyi halda, mənzili almaq hüququ onu bron etmiş digər şəxsə keçir. Mənzili bron etmiş şəxslə satıcı arasında 10 gün müddətində dəyəri tam ödənilməklə mənzilə dair notariat qaydasında təsdiq edilmiş alqı-satqı müqaviləsi bağlanır.













